Logo video2dn
  • Сохранить видео с ютуба
  • Категории
    • Музыка
    • Кино и Анимация
    • Автомобили
    • Животные
    • Спорт
    • Путешествия
    • Игры
    • Люди и Блоги
    • Юмор
    • Развлечения
    • Новости и Политика
    • Howto и Стиль
    • Diy своими руками
    • Образование
    • Наука и Технологии
    • Некоммерческие Организации
  • О сайте

Скачать или смотреть How to Create a Duct/Pipe Combo Hanger

  • Be Smart Software by ARKANCE
  • 2017-06-20
  • 1156
How to Create a Duct/Pipe Combo Hanger
assemblyductpipebimagacadagaautodeskautocadrevitt4rtools4revittools for revitaddonadd-onpluginplug-inCAD Technology CenterCADAutodesk Building Solutions
  • ok logo

Скачать How to Create a Duct/Pipe Combo Hanger бесплатно в качестве 4к (2к / 1080p)

У нас вы можете скачать бесплатно How to Create a Duct/Pipe Combo Hanger или посмотреть видео с ютуба в максимальном доступном качестве.

Для скачивания выберите вариант из формы ниже:

  • Информация по загрузке:

Cкачать музыку How to Create a Duct/Pipe Combo Hanger бесплатно в формате MP3:

Если иконки загрузки не отобразились, ПОЖАЛУЙСТА, НАЖМИТЕ ЗДЕСЬ или обновите страницу
Если у вас возникли трудности с загрузкой, пожалуйста, свяжитесь с нами по контактам, указанным в нижней части страницы.
Спасибо за использование сервиса video2dn.com

Описание к видео How to Create a Duct/Pipe Combo Hanger

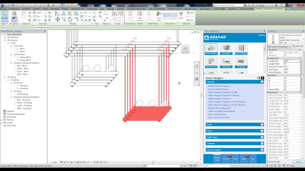
This AGACAD video shows how to create a combined duct/pipe hanger assembly in Revit.

Got more Revit MEP questions? Check what we've got archived:
• How to set up hanger distribution rules →    • How to Distribute Hundreds of Hangers & Su...  
• How to use multi-run and/or multi-level hangers? (e.g. unistrut trapeze hangers) →    • Automation of Complex MEP Hangers and Supp...  
• How to create a custom hanger? →    • How to Create a Custom Hanger in Revit  

Check out our MEP playlist:    • MEP  

More How-To's:    • Revit How To's  

=====================================

Free trial HERE: https://goo.gl/xcFmNK
Contact us HERE: https://goo.gl/LfyeUJ
Read more HERE: https://goo.gl/VfJ3ND

SOCIAL MEDIA:
YouTube:    / @be-smart-software  
Facebook:   / agacad.tools4bim  
Twitter:   / tools4revit  
LinkedIn:   / 904996  

***** **** *** ** *

◘ BIM software for fast precision layout of hangers and supports

MEP Hangers (https://goo.gl/VfJ3ND) enables the instant large-scale insertion of hangers and supports throughout a Revit® model for ducts, pipes, cable trays and conduits. You get accurate bills of materials and builders work drawings, and accurate on-site assembly thanks to BIM-to-Field features.

The software uses simple yet highly flexible rules to select the relevant Revit® MEP systems and add (or modify) needed hangers or supports with their varied connections. They can be distributed as a fixed number per segment or based on the distance between bearing points.

MEP Hangers also splits ducts, pipes, cable trays and conduits into predefined lengths as needed, and marks all service components for fabrication. For on-site precision and efficiency, it exports bearing points to Trimble or TopCon tools and drilling robots.

Комментарии

Информация по комментариям в разработке

Похожие видео

  • О нас
  • Контакты
  • Отказ от ответственности - Disclaimer
  • Условия использования сайта - TOS
  • Политика конфиденциальности

video2dn Copyright © 2023 - 2025

Контакты для правообладателей [email protected]